Leave a Message

Thank you for your message. We will be in touch with you shortly.

Explore Our Properties

Property Description

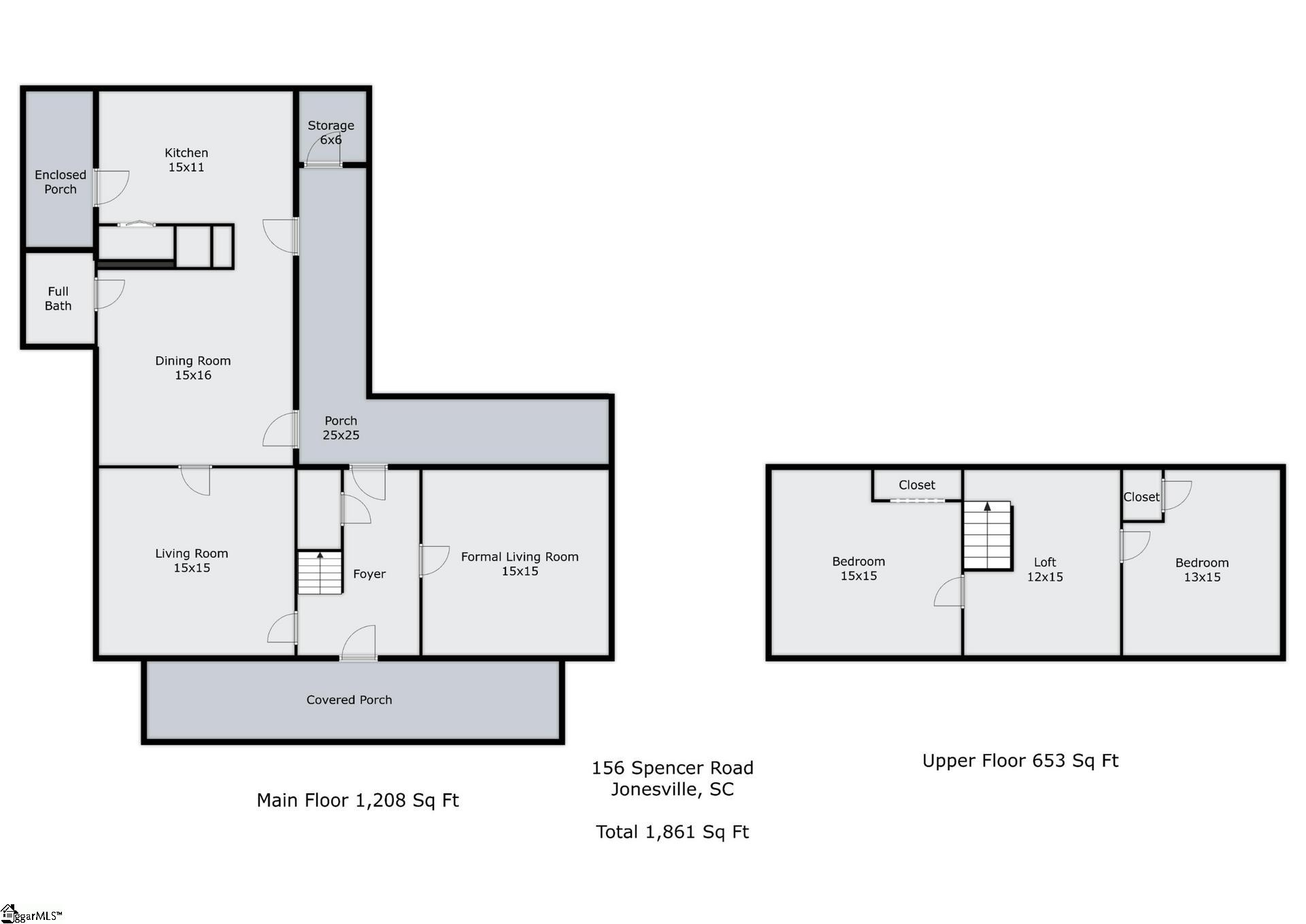
Welcome to 156 Spencer Road-37 private acres where you can hunt deer, turkey, fox and rabbit. There is a home on the property that will be sold as is and features a large front porch, covered back porch, original hardwood floors, several living rooms (some could be bedrooms), kitchen, full bath, two bedrooms and a loft. Additionally, there is a carport and outbuilding that will be sold as is. The home sits back off the road and has ample driveway parking. Behind the home is a fenced area where you could have gardens, chickens, camper and boat parking, workshop, and more. The crown jewel of this property is the peaceful wooded acreage just beyond the fence. Use it for hunting, bird watching, build a little cabin...the sky is the limit! When you need a break from hunting head over to Jonesville Reservoir Lake for a little fishing or grab a bite to eat on Main Street-both less than five minutes away! This is a GREAT opportunity-don't let it slip away!

Overview

Property Status
Sold
Lot Size
37 Acres
MLS ID
1557265
Property Type
Residential

Features & Amenities

Total Area
1,861 Sq.Ft.
Architecture Styles
Traditional
Stories
2
Water Source
Public
Roof
Composition
Lot Features
25 - 50 Acres, Few Trees, Wooded, Other
Parking
Detached Carport, Parking Pad, Asphalt, Side/Rear Entry, Carport, Driveway
Heat Type
Other
Air Conditioning
Other
Laundry Room
None
Fireplace
None
Appliances
None
Other Interior Features
Bookcases, Ceiling Fan(s), Laminate Counters
Sewer
Other
Substructure
Crawl Space
Elementary School
Jonesville
Middle School
Jonesville
High School
Union County
Sales Price
$250,000
Real Estate Tax
$556/yr

Downloads

156 Spencer Road

Schedule a Tour

We would love to help you see this beautiful home! As a full-service brokerage, we can help you tour. Please submit an offer, and answer questions about the buying process.

Enter a valid email

Thank you

for your interest in 156 Spencer Road, Jonesville, SC 29653

back to page
156 Spencer Road
Navigate

I'm Interested In

156 Spencer Road

or

Browse My

Current Listings

  • 403 Waterton Way Sold

    $734,500

    403 Waterton Way, Moore, SC 29369

    • 4 Beds
    • 5 Baths
    • 3,941 Sq.Ft.
  • 403 Waterton Way Sold

    $734,500

    403 Waterton Way, Moore, SC 29369

    • 4 Beds
    • 5 Baths
    • 3,941 Sq.Ft.
  • 151 Waterford Drive Sold

    $630,000

    151 Waterford Drive, Inman, SC 29349

    • 5 Beds
    • 3 Baths
    • 3,241 Sq.Ft.
  • 940 Robbins Road Sold

    $549,000

    940 Robbins Road, Chesnee, SC 29323

    • 4 Beds
    • 4 Baths
    • 2,653 Sq.Ft.
  • 940 Robbins Road Sold

    $549,000

    940 Robbins Road, Chesnee, SC 29323

    • 4 Beds
    • 4 Baths
    • 2,653 Sq.Ft.
  • 444 Jack Hunter Place Sold

    $514,750

    444 Jack Hunter Place, Reidville, SC 29388

    • 4 Beds
    • 3 Baths
    • 4,469 Sq.Ft.
  • 504 Doubletree Court Sold

    $450,000

    504 Doubletree Court, Inman, SC 29349

    • 3 Beds
    • 3 Baths
    • 2,239 Sq.Ft.
  • 504 Doubletree Court Sold

    $450,000

    504 Doubletree Court, Inman, SC 29349

    • 3 Beds
    • 3 Baths
    • 2,177 Sq.Ft.
  • 204 Harvest Wood Lane Sold

    $445,000

    204 Harvest Wood Lane, Woodruff, SC 29388

    • 5 Beds
    • 3 Baths
    • 2,504 Sq.Ft.
  • 204 Harvest Wood Lane Sold

    $445,000

    204 Harvest Wood Lane, Woodruff, SC 29388

    • 5 Beds
    • 3 Baths
    • 2,504 Sq.Ft.
  • 400 W Arlington Avenue Sold

    $415,000

    400 W Arlington Avenue, Greer, SC 29650

    • 3 Beds
    • 2 Baths
    • 2,273 Sq.Ft.
  • 108 Wellington Drive Sold

    $390,000

    108 Wellington Drive, Mauldin, SC 29662

    • 3 Beds
    • 2 Baths
    • 2,463 Sq.Ft.
  • 108 Wellington Drive Sold

    $390,000

    108 Wellington Drive, Mauldin, SC 29662

    • 3 Beds
    • 2 Baths
    • 2,463 Sq.Ft.
  • 621 Boyd Street Sold

    $385,000

    621 Boyd Street, Spartanburg, SC 29302

    • 3 Beds
    • 2 Baths
    • 1,942 Sq.Ft.
  • 621 Boyd Street Sold

    $385,000

    621 Boyd Street, Spartanburg, SC 29302

    • 3 Beds
    • 2 Baths
    • 1,685 Sq.Ft.
  • 220 Beechwood Drive Sold

    $375,000

    220 Beechwood Drive, Spartanburg, SC 29307

    • 3 Beds
    • 3 Baths
    • 2,380 Sq.Ft.
  • 240 Heathwood Drive Sold

    $325,000

    240 Heathwood Drive, Spartanburg, SC 29307

    • 4 Beds
    • 2 Baths
    • 2,479 Sq.Ft.
  • 470 Webber Road Sold

    $320,000

    470 Webber Road, Spartanburg, SC 29307

    • 4 Beds
    • 2 Baths
    • 2,027 Sq.Ft.
  • 118 Madera Court Sold

    $319,900

    118 Madera Court, Spartanburg, SC 29302

    • 4 Beds
    • 3 Baths
    • 2,479 Sq.Ft.
  • 308 Round Ridge Road Sold

    $315,000

    308 Round Ridge Road, Spartanburg, SC 29302

    • 4 Beds
    • 3 Baths
    • 2,629 Sq.Ft.
  • 308 Round Ridge Road Sold

    $315,000

    308 Round Ridge Road, Spartanburg, SC 29302

    • 4 Beds
    • 3 Baths
    • 2,629 Sq.Ft.
  • 624 Gramercy Boulevard Sold

    $305,000

    624 Gramercy Boulevard, Spartanburg, SC 29301

    • 3 Beds
    • 2 Baths
    • 1,698 Sq.Ft.
  • 624 Gramercy Boulevard Sold

    $305,000

    624 Gramercy Boulevard, Spartanburg, SC 29301

    • 3 Beds
    • 2 Baths
    • 1,698 Sq.Ft.
  • 201 W Coleman Street Sold

    $303,000

    201 W Coleman Street, Landrum, SC 29356

    • 4 Beds
    • 2 Baths
    • 1,794 Sq.Ft.
  • 201 W Coleman Street Sold

    $303,000

    201 W Coleman Street, Landrum, SC 29356

    • 4 Beds
    • 2 Baths
    • 1,794 Sq.Ft.
  • 735 Kelly Road Sold

    $300,000

    735 Kelly Road, Woodruff, SC 29388

    • 3 Beds
    • 3 Baths
    • 1,777 Sq.Ft.
  • 108 Kent Place Sold

    $295,000

    108 Kent Place, Spartanburg, SC 29307

    • 3 Beds
    • 3 Baths
    • 1,988 Sq.Ft.
  • 108 Kent Place Sold

    $295,000

    108 Kent Place, Spartanburg, SC 29307

    • 3 Beds
    • 3 Baths
    • 1,988 Sq.Ft.
  • 435 Briarwood Road Sold

    $290,000

    435 Briarwood Road, Spartanburg, SC 29301

    • 3 Beds
    • 3 Baths
    • 2,574 Sq.Ft.
  • 420 Gibbs Road Sold

    $289,799

    420 Gibbs Road, Wellford, SC 29385

    • 3 Beds
    • 3 Baths
    • 1,849 Sq.Ft.
  • 4742 Worden Drive Sold

    $282,000

    4742 Worden Drive, Spartanburg, SC 29301

    • 4 Beds
    • 2 Baths
    • 2,263 Sq.Ft.
  • 109 Pinetree Circle For Sale

    $279,900

    109 Pinetree Circle, Spartanburg, SC 29307

    • 3 Beds
    • 2 Baths
    • 2,006 Sq.Ft.
  • 109 Pinetree Circle For Sale

    $279,900

    109 Pinetree Circle, Spartanburg, SC 29307

    • 3 Beds
    • 2 Baths
    • 2,006 Sq.Ft.
  • 325 N Timm Creek Avenue Sold

    $275,000

    325 N Timm Creek Avenue, Roebuck, SC 29376

    • 4 Beds
    • 2 Baths
    • 1,802 Sq.Ft.
  • 325 N Timm Creek Avenue Sold

    $275,000

    325 N Timm Creek Avenue, Roebuck, SC 29376

    • 4 Beds
    • 2 Baths
    • 1,802 Sq.Ft.
  • 382 N Timm Creek Avenue Sold

    $274,500

    382 N Timm Creek Avenue, Roebuck, SC 29376

    • 4 Beds
    • 2 Baths
    • 1,752 Sq.Ft.
  • 156 Spencer Road Sold

    $250,000

    156 Spencer Road, Jonesville, SC 29653

    • 2 Beds
    • 1 Bath
    • 1,861 Sq.Ft.
  • 544 Mill Park Way Sold

    $234,990

    544 Mill Park Way, Spartanburg, SC 29307

    • 3 Beds
    • 3 Baths
    • 1,599 Sq.Ft.
  • 104 1st Avenue Sold

    $214,900

    104 1st Avenue, Spartanburg, SC 29302

    • 3 Beds
    • 2 Baths
    • 1,363 Sq.Ft.
  • 111 Collins Avenue Sold

    $211,000

    111 Collins Avenue, Spartanburg, SC 29306

    • 3 Beds
    • 2 Baths
    • 1,633 Sq.Ft.
  • 3851 Maid Marion Lane Sold

    $180,000

    3851 Maid Marion Lane, Spartanburg, SC 29302

    • 3 Beds
    • 2 Baths
    • 1,633 Sq.Ft.
  • 1129 Webber Way For Sale

    $174,900

    1129 Webber Way, Spartanburg, SC 29307

    • 2 Beds
    • 2 Baths
    • 1,085 Sq.Ft.
  • 1129 Webber Way For Sale

    $174,900

    1129 Webber Way, Spartanburg, SC 29307

    • 2 Beds
    • 2 Baths
    • 1,085 Sq.Ft.
  • 225 Montgomery Avenue Sold

    $143,000

    225 Montgomery Avenue, Pacolet, SC 29372

    • 3 Beds
    • 1 Bath
    • 1,388 Sq.Ft.
  • Cowpens Pacolet Road For Sale

    $110,000

    Cowpens Pacolet Road, Spartanburg, SC 29307

  • Cowpens Pacolet Road For Sale

    $110,000

    Cowpens Pacolet Road, Spartanburg, SC 29307

  • 3739 Cowpens Pacolet Road Sold

    $70,000

    3739 Cowpens Pacolet Road, Spartanburg, SC 29307

  • 3739 Cowpens Pacolet Road Sold

    $70,000

    3739 Cowpens Pacolet Road, Spartanburg, SC 29307

  • Old Pacolet Road Sold

    $20,000

    Old Pacolet Road, Pacolet, SC 29372

View All

Follow Us On Instagram